|
主要性能參數
| 適用介質 |
含塵固體顆粒或粉料 |
電源電壓 |
380V50Hz |
| 適用溫度 |
≤350℃ |
調節特性 |
常規情況二位開關式 |
| 電液推桿型號 |
DYT系列 |
特殊情況4-20mA電信號 |
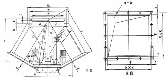
1、DSF-□A(B)□型電液動三通分料器

2.DSF-□C(D、E)□型電液動三通分料器


3.DSF-□F□型電液動三通分料器

4.DCSF-□-□型電液動三通分料器
產品特點
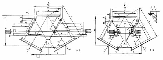
DCSF型電液動船式三通分料器,采用船式溜槽結構,使物料更加暢通;增裝導向輥,保持較小的負角間隙,有效的防止物料進入間隙內;進煤有“漏斗”狀護架,使物料直接進入船體內。由于采用拼裝結構,維修也比較方便。

5.DBSF-□-□型電液動三通分料器
產品特點
DBSF型擺動三通分料器采用內套筒換向結構,使物料與三通殼休分離, 這樣就不會在殼壁上積料或結疤、不存在卡住套筒轉動不靈活的問題,也不會出現漏料、混料現象。 操作靈活、省力。
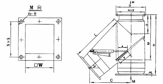
6.D4F-□-□型電液動四通分料器

|